Verkocht:Schuitenberg 11, 6041 JG Roermond - Foto
Verkocht
+57

Schuitenberg 11 6041 JG Roermond

  • Woonhuis
  • 8 kamers
  • 6 slaapkamers
  • 2 badkamers
  • Bouwjaar 1950
  • 300 m² perceeloppervlakte
  • 318 m² gebruiksoppervlakte
  • A Energielabel A

Beschrijving

Dit prachtige woonhuis aan Schuitenberg 11 straalt een industriële sfeer uit en is een unicum in de binnenstad van Roermond. Met zijn royale stadstuin, dubbele inpandige garage, dakterras en luxueuze afwerking is dit een droomhuis voor diegene welke op zoek zijn naar comfort en stijl.
De woning, gebouwd in 1950, is volledig gerenoveerd en gemoderniseerd tussen 2016 en 2017, met een aandacht voor luxe en detail die je zelden tegenkomt. Het leefgedeelte op de begane grond geniet van een plafondhoogte van maar liefst 4 meter.
Kom dit unieke object in het centrum van Roermond nabij Munsterplein en Kloosterwandplein bezichtigen en laat je verrassen door de mogelijkheden!

Indeling
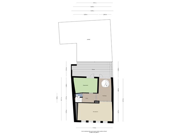
Begane grond
Stap de gang binnen met een strakke tegelvloer.
Van hieruit bereik je de inpandige garage (ca. 35m2) met plek voor twee auto’s tevens voorzien van tegelvloer en elektrische rolpoort.
De gang leidt naar een tussenhal met een authentieke kloostervloer, handige bergruimte en een luxe toilet inclusief urinoir.
De riante leefruimte (ca. 70m2) op de begane grond ademt industrieel chic met zijn gietvloer en vloerverwarming. De keuken is pure luxe met een notenhouten afwerking, keramisch werkblad, en alle snufjes die je maar kan bedenken, inclusief een wijnklimaatkast en een tapinstallatie.
De harmonicadeuren zorgen voor veel lichtinval en optimaal contact met de tuin.

1e Verdieping
Ga de wenteltrap op naar de eerste verdieping met een royale overloop die toegang geeft tot een tweede woon- c.q. tv-kamer (ca. 30m2) met visgraat parketvloer plus een slaap-/werkkamer (ca. 17m2) met deur naar een riant dakterras (ca. 30m2). Het dakterras is perfect voor een heerlijk kopje koffie in de ochtendzon of voor de zwoele zomeravonden.

2e Verdieping
De tweede verdieping biedt alles wat je hartje begeert: een fraaie master bedroom (ca. 17m2) met ensuite kleedkamer (ca. 8m2), twee extra slaapkamers (respectievelijk 9 en 11m2) en een badkamer (ca. 13m2) waar je ultiem kan relaxen in het ligbad of onder de dubbele douche. Separaat toilet.

3e Verdieping
Zeer royale en sfeervolle slaapkamer maar liefst ca. 36m2 met fraaie dakkapel en ensuite badkamer. Deze badkamer (ca. 5m2) is voorzien van douche, wastafel en toilet. Verder is er nog een separate c.v.-/bergruimte.

Tuin
De mediterrane tuin op het Zuid-Oosten is dé place to be voor zonnige dagen en avonden. Lekker betegeld met een royaal overdekt terras om volop te genieten van het buitenleven.

Bijzonderheden
De renovatie in 2016-2017 heeft deze woning naar een next level gebracht met dak- en muurisolatie, aluminium kozijnen met HR ++ glas, en een domotica-systeem dat je elke tech lover doet watertanden. Met energielabel A ben je ook nog eens lekker duurzaam bezig.

Kaart

Kenmerken

Overdracht

Referentienummer
06702
Koopsom
€ 890.000,- k.k.
Status
Verkocht
Aanvaarding
In overleg
Aangeboden sinds
Donderdag 17 april 2025
Laatste wijziging
Vrijdag 17 oktober 2025

Bouw

Type object
Woonhuis, herenhuis, tussenwoning
Soort bouw
Bestaande bouw
Bouwperiode
1950
Dakbedekking
Bitumen
Dakpannen
Type dak
Samengesteld
Isolatievormen
Dakisolatie
Dubbel glas
HR-glas
Muurisolatie
Spouwmuren
Vloerisolatie

Oppervlaktes en inhoud

Perceeloppervlakte
300 m²
Woonoppervlakte
318 m²
Woonkameroppervlakte
77,59 m²
Keukenoppervlakte
27,89 m²
Inhoud
1.259 m³
Oppervlakte overige inpandige ruimten
37,7 m²
Oppervlakte gebouwgebonden buitenruimte
45,5 m²

Indeling

Aantal bouwlagen
4
Aantal kamers
8 (waarvan 6 slaapkamers)
Aantal badkamers
2 (en 3 aparte toiletten)

Locatie

Ligging
In centrum

Tuin

Type
Achtertuin
Hoofdtuin
Ja
Oriëntering
Zuidoost
Staat
Prachtig aangelegd

Energieverbruik

Energielabel
A

CV ketel

CV ketel
Remeha HR
Warmtebron
Gas
Bouwjaar
2017
Combiketel
Ja
Eigendom
Eigendom

Uitrusting

Warm water
CV-ketel
Verwarmingssysteem
Centrale verwarming
Vloerverwarming (gedeeltelijk)
Keukenvoorzieningen
Inbouwapparatuur
Kookeiland
Badkamervoorzieningen Badkamer 1
Inloopdouche
Ligbad
Wasmachineaansluiting
Wastafelmeubel
Badkamervoorzieningen Badkamer 2
Douche
Toilet
Wastafelmeubel
Parkeergelegenheid
Inpandige garage
Tuin aanwezig
Ja
Heeft een garage
Ja
Heeft een dakraam
Ja
Heeft zonwering
Ja

Kadastrale gegevens

Kadastrale aanduiding
Roermond D 4348
Perceeloppervlakte
300 m²
Omvang
Geheel perceel

Benieuwd wat jouw woning waard is?

Gratis waardebepaling