Koop:Koninginnesingel 84, 5911 KG Venlo - Foto
+54

Koninginnesingel 84 5911 KG Venlo € 395.000,- k.k.

  • Appartement
  • 4 kamers
  • 2 slaapkamers
  • 1 badkamers
  • Bouwjaar 1964
  • 120 m² gebruiksoppervlakte
  • D Energielabel D

Beschrijving

Ruim appartement met groot terras in hartje Venlo!

Op een toplocatie aan de Koninginnesingel in het centrum van Venlo ligt dit royale appartement van maar liefst 120 m² met zowel een ruim balkon als een zonnig dakterras van 45 m². Comfortabel wonen met alle voorzieningen binnen handbereik!

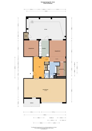
Indeling
Via de entree/hal kom je in de ruime woonkamer, die toegang biedt tot het balkon aan de voorzijde. De gesloten keuken is netjes ingericht met een inbouwcombinatie inclusief apparatuur en geeft toegang tot het royale dakterras: een heerlijke plek om buiten te genieten.

Het appartement beschikt over twee ruime slaapkamers (ca. 19 m² en 14 m²). De grootste slaapkamer heeft een inloopkast en een badkamer met douche, dubbele wastafel en toilet.

Bijzonderheden
*Woonoppervlakte 120 m²
*Groot dakterras (ca. 45 m²) en balkon
*Liftinstallatie aanwezig
*Airconditioning
*2 ruime slaapkamers, waarvan 1 met inloopkast en badkamer
*Mogelijkheid tot aankoop van een privéparkeerplaats in de parkeerkelder

Een heerlijk ruim appartement met volop buitenruimte en voorzieningen, ideaal gelegen in het centrum van Venlo!

Indeling

- Centrale entree met liftinstallatie.
- Kelderberging.

Verdieping
- Entree/hal.
- Netjes betegeld toilet met fonteintje.
- Ruime woonkamer met vaste kastenwand en toegang tot balkon.
- Keuken met nette inbouwcombinatie en voorzien van inbouwapparatuur: koelkast, diepvries, wasmachine, vaatwasmachine, keramische kookplaat, afzuigkap en combi magnetron.
- Via keuken toegang tot zeer fraai en ruim dakterras (ca 45m²).
- Slaapkamer 1
- Slaapkamer 2 voorzien van airco en toegang tot:
- Garderobe met vaste kasten
- Badkamer met dubbele wastafel, toilet en douche.

Balkon

Balkon aan voorzijde (straatzijde; ca 5m²) en aan achterzijde gelegen zeer ruim dakterras (ca. 45m²) met kleine berging.

Bijzonderheden

- Appartement is voorzien van een liftinstallatie.
- Kunststof en houten kozijnen met grotendeels dubbele beglazing.
- Vaillant geiser.
- Verwarming via blokverwarming.
- Servicekosten € 295,-- per maand
- Optioneel parkeerplaats in parkeergarage Spoorstraat: € 25.000,--.
- Energielabel D.

Kaart

Kenmerken

Overdracht

Referentienummer
06755
Vraagprijs
€ 395.000,- k.k.
Servicekosten
€ 295,-
Inrichting
Niet gestoffeerd
Inrichting
Niet gemeubileerd
Aanvaarding
In overleg
Aangeboden sinds
Woensdag 17 september 2025
Laatste wijziging
Dinsdag 23 september 2025

Bouw

Type object
Appartement, portiekflat
Woonlaag
1e woonlaag
Soort bouw
Bestaande bouw
Bouwperiode
1964
Dakbedekking
Bitumen
Type dak
Platdak
Isolatievormen
Grotendeels dubbel glas

Oppervlaktes en inhoud

Woonoppervlakte
120 m²
Woonkameroppervlakte
46,49 m²
Keukenoppervlakte
8,44 m²
Inhoud
338 m³
Oppervlakte overige inpandige ruimten
2 m²
Oppervlakte externe bergruimte
21 m²
Oppervlakte gebouwgebonden buitenruimte
51 m²
Balkonoppervlakte
6,99 m²

Indeling

Aantal bouwlagen
1
Aantal kamers
4 (waarvan 2 slaapkamers)
Aantal badkamers
1 (en 1 apart toilet)

Locatie

Ligging
In centrum

Energieverbruik

Energielabel
D

Uitrusting

Warm water
Geiser
Verwarmingssysteem
Blokverwarming
Badkamervoorzieningen
Douche
Dubbele wastafel
Toilet
Heeft airco
Ja
Heeft een balkon
Ja
Heeft een lift
Ja

Vereniging van Eigenaren

Ingeschreven bij de KvK
Ja
Jaarlijkse vergadering
Ja
Periodieke bijdrage
Ja
Reservefonds
Ja
Meer jaren onderhoudsplan
Ja
Onderhoudsverwachting
Ja
Opstal verzekering
Ja

Kadastrale gegevens

Kadastrale aanduiding
Venlo D 5900
Omvang
Appartementsrecht of complex
Indexnummer
4
Kadastrale aanduiding
Venlo D 5900
Omvang
Appartementsrecht of complex
Eigendomsituatie
Eigen grond
Indexnummer
14

Benieuwd wat jouw woning waard is?

Gratis waardebepaling