Verkocht onder voorbehoud:Sinselveldstraat 10A, 5912 CB Venlo - Foto
Verkocht onder voorbehoud
+51

Sinselveldstraat 10A 5912 CB Venlo € 369.000,- k.k.

  • Woonhuis
  • 5 kamers
  • 4 slaapkamers
  • 1 badkamer
  • Bouwjaar 1996
  • 124 m² perceeloppervlakte
  • 115 m² gebruiksoppervlakte
  • A Energielabel A

Beschrijving

Op loopafstand van het centrum van Venlo ligt deze goed onderhouden en uitgebouwde tussenwoning met een zonnige achtertuin op het westen, voorzien van een berging en een vrije achterom.

Via de entree bereik je de ruime, uitgebouwde woonkamer, die is afgewerkt met een fraaie eikenhouten vloer en veel lichtinval. Aan de voorzijde bevindt zich de complete inbouwkeuken, die is voorzien van diverse apparatuur en voldoende werk- en opbergruimte.

Op de eerste verdieping bevinden zich drie slaapkamers en een nette, volledig betegelde badkamer met douche, toilet en wastafelmeubel. De slaapkamers zijn daarnaast uitgerust met rolluiken, wat zorgt voor extra comfort en privacy.

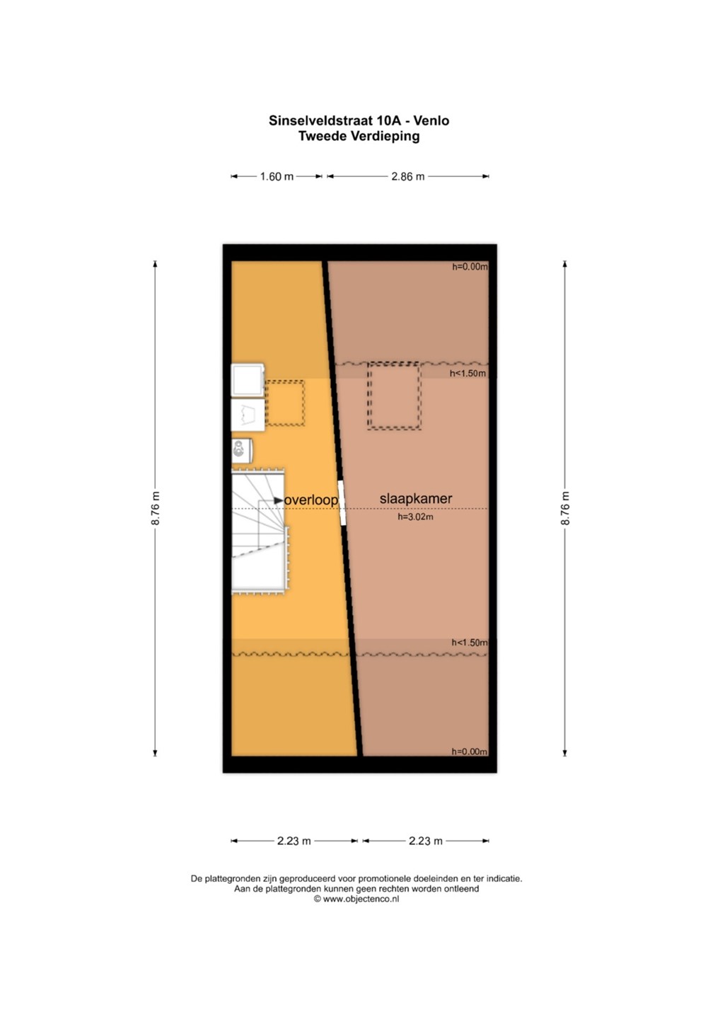
Via een vaste trap bereik je de tweede verdieping, waar zich een overloop en een vierde slaapkamer bevinden – ideaal als werk-, hobby- of logeerkamer.

De woning is gebouwd in 1996, volledig geïsoleerd en beschikt over een gunstig energielabel A. Bovendien zijn er 12 zonnepanelen aanwezig, wat bijdraagt aan lage energielasten en duurzaam wooncomfort.

Indeling

- Entree.
- Meterkast.
- Toilet met fonteintje.
- Ruime uitgebouwde woonkamer (8,79 x 4,52m) met eiken vloer en tuindeuren naar terras.
- Aan voorzijde gelegen keuken (3,01 x 2,41m) met complete inbouwcombinatie met inbouwapparatuur: koelkast, inductie kookplaat, afzuigkap, vaatwasmachine, vaatwasmachine en combi magnetron.

* Begane grond voorzien van een fraaie eiken vloer.

Eerste verdieping

- Overloop.
- Slaapkamer 1 (4,54 x 2,91m)
- Slaapkamer 2 (3,86 x 2,21m)
- Slaapkamer 3 (2,83 x 2,25m)
- Netjes betegelde badkamer (2,35 x 1,80m) met douche, wastafelmeubel en toilet.

- Verdieping voorzien van laminaatvloer.

Tweede verdieping

- Via vaste trap naar 2e verdieping.
- Overloop met aansluiting wasmachine; dakraam aanwezig.
- Slaapkamer 4 (ca. 4,00 x 2,86/2,23m) met dakraam.

Tuin

De achtertuin is voorzien van een berging (3,48 x 2,22m) en vrije achterom; netjes aangelegd en gelegen op het westen.

Bijzonderheden

- Gehele woning voorzien van houten kozijnen met dubbele beglazing.
- Volledig geïsoleerd.
- Rolluiken 1e verdieping.
- Bouwjaar 1996.
- Nefit HR combi cv ketel (bouwjaar 2022).
- Mechanische ventilatie (2022).
- 12 Zonnepanelen.
- Energielabel A.
- Aanvaarding 1 juni 2026.

Kaart

Kenmerken

Overdracht

Referentienummer
06785
Vraagprijs
€ 369.000,- k.k.
Status
Verkocht onder voorbehoud
Aanvaarding
In overleg
Aangeboden sinds
Vrijdag 20 maart 2026
Laatste wijziging
Donderdag 23 april 2026

Bouw

Type object
Woonhuis, eengezinswoning, tussenwoning
Soort bouw
Bestaande bouw
Bouwperiode
1996
Dakbedekking
Bitumen
Dakpannen
Type dak
Zadeldak
Isolatievormen
Ankerloze spouwmuren
Dakisolatie
Dubbel glas
Muurisolatie
Spouwmuren
Vloerisolatie
Volledig geïsoleerd

Oppervlaktes en inhoud

Perceeloppervlakte
124 m²
Woonoppervlakte
115 m²
Woonkameroppervlakte
39,73 m²
Keukenoppervlakte
7,25 m²
Inhoud
398 m³
Oppervlakte externe bergruimte
8 m²

Indeling

Aantal bouwlagen
3
Aantal kamers
5 (waarvan 4 slaapkamers)
Aantal badkamers
1 (en 1 apart toilet)

Tuin

Type
Afgesloten tuin
Hoofdtuin
Ja
Oriëntering
West
Heeft een achterom
Ja
Staat
Normaal

Energieverbruik

Energielabel
A

CV ketel

CV ketel
Nefit HR
Warmtebron
Gas
Bouwjaar
2022
Combiketel
Ja
Eigendom
Eigendom

Uitrusting

Warm water
CV-ketel
Verwarmingssysteem
Centrale verwarming
Ventilatie methode
Mechanische ventilatie
Tuin aanwezig
Ja
Heeft rolluiken
Ja
Heeft schuur/berging
Ja
Heeft een dakraam
Ja
Heeft zonnepanelen
Ja
Heeft ventilatie
Ja

Kadastrale gegevens

Kadastrale aanduiding
Venlo H 6206
Perceeloppervlakte
124 m²
Eigendomsituatie
Eigen grond

Benieuwd wat jouw woning waard is?

Gratis waardebepaling