Verkocht onder voorbehoud:Zwanenstraat 47, 5912 SZ Venlo - Foto
Verkocht onder voorbehoud
+50

Zwanenstraat 47 5912 SZ Venlo € 465.000,- k.k.

  • Woonhuis
  • 5 kamers
  • 4 slaapkamers
  • 1 badkamer
  • Bouwjaar 1998
  • 243 m² perceeloppervlakte
  • 126 m² gebruiksoppervlakte
  • A Energielabel A

Beschrijving

Comfortabel wonen aan de Zwanenstraat in Venlo-Zuid
Met een woonoppervlakte van circa 126 m² en gelegen op een perceel van 243 m² biedt deze twee-onder-een-kapwoning verrassend veel ruimte, comfort en woonplezier. Deze uitstekend onderhouden woning beschikt over een lichte en ruime woonkamer met fraaie erker, moderne keuken (2015), luxe badkamer (2016) en 4 slaapkamers. De zonnige achtertuin (Zuid-Oosten), garage en eigen oprit maken het geheel compleet.
De woning is volledig geïsoleerd, voorzien van 13 zonnepanelen, airconditioning en beschikt over energielabel A oftewel lage energielasten!

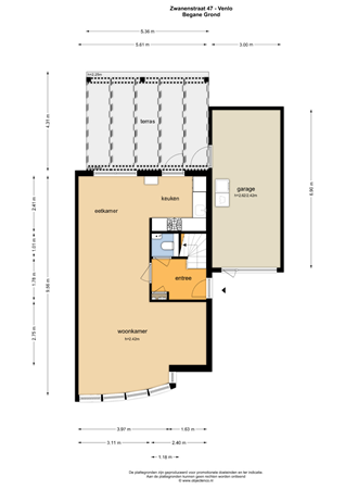
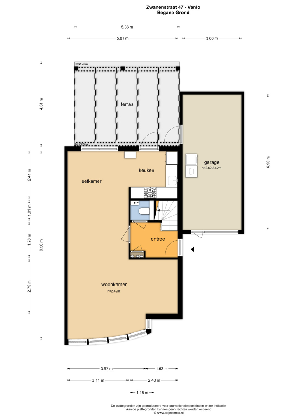
Indeling

Vanaf het moment dat je binnenstapt, ervaar je de prettige lichtinval en de fijne indeling die deze woning zo geschikt maken voor gezinnen en doorstromers.

De begane grond beschikt over een ruime en lichte woonkamer met een fraaie erker aan de voorzijde. De halfopen keuken, modern ingericht in 2015 en voorzien van diverse inbouwapparatuur (deels vernieuwd in 2024), vormt een prettig geheel met de woonkamer.
De begane grond is grotendeels afgewerkt met een fraaie eikenhouten vloer, wat bijdraagt aan de warme uitstraling.

Op de eerste verdieping bevinden zich 3 comfortabele slaapkamers en een moderne, complete badkamer uit 2016. Deze is uitgerust met een inloopdouche, een ligbad met whirlpoolfunctie, een wastafelmeubel, een tweede toilet en vloerverwarming. De verdieping is praktisch en verzorgd afgewerkt met laminaatvloeren.

De tweede verdieping is verrassend ruim en biedt plaats aan een royale 4e slaapkamer met dakkapel en inloopkast. Daarnaast is er een overloop met was- en c.v.-ruimte en een vaste kast. Ook deze verdieping is voorzien van laminaatvloeren en is multifunctioneel in te richten.

Buiten geniet je van een royale, verzorgde achtertuin op het zuidoosten, waar het dankzij de overkapping heerlijk vertoeven is. De aangebouwde garage beschikt over aansluitingen voor witgoed en een aparte loopdeur. Parkeren kan bovendien op eigen oprit.

Bijzonderheden

- De woning is volledig geïsoleerd.
- Hardhouten en deels kunststof kozijnen met dubbele beglazing.
- Rolluiken verdieping.
- Screens erker begane grond.
- C.V.-combi-ketel Remeha 2013.
- Airco op de 2e verdieping.
- Zonnepanelen (13).
- Energielabel A.

Kaart

Kenmerken

Overdracht

Referentienummer
06781
Vraagprijs
€ 465.000,- k.k.
Status
Verkocht onder voorbehoud
Aanvaarding
Per donderdag 28 mei 2026
Aangeboden sinds
Vrijdag 30 januari 2026
Laatste wijziging
Maandag 16 maart 2026

Bouw

Type object
Woonhuis, eengezinswoning, geschakelde twee onder een kap woning
Soort bouw
Bestaande bouw
Bouwperiode
1998
Dakbedekking
Bitumen
Dakpannen
Type dak
Samengesteld
Isolatievormen
Dubbel glas
Spouwmuren
Volledig geïsoleerd

Oppervlaktes en inhoud

Perceeloppervlakte
243 m²
Woonoppervlakte
126 m²
Woonkameroppervlakte
35 m²
Keukenoppervlakte
5,78 m²
Inhoud
505 m³
Oppervlakte overige inpandige ruimten
21 m²
Oppervlakte gebouwgebonden buitenruimte
23 m²

Indeling

Aantal bouwlagen
3
Aantal kamers
5 (waarvan 4 slaapkamers)
Aantal badkamers
1 (en 1 apart toilet)

Locatie

Ligging
In woonwijk

Tuin

Type
Achtertuin
Hoofdtuin
Ja
Oriëntering
Zuidoost
Heeft een achterom
Ja
Staat
Goed onderhouden

Energieverbruik

Energielabel
A

CV ketel

CV ketel
Remeha HR
Warmtebron
Gas
Bouwjaar
2013
Combiketel
Ja
Eigendom
Eigendom

Uitrusting

Aantal parkeerplaatsen
2
Warm water
CV-ketel
Verwarmingssysteem
Airconditioning
Centrale verwarming
Vloerverwarming (gedeeltelijk)
Keukenvoorzieningen
Inbouwapparatuur
Badkamervoorzieningen
Inloopdouche
Ligbad
Toilet
Vloerverwarming
Wastafelmeubel
Parkeergelegenheid
Aangebouwde stenen garage
Heeft airco
Ja
Tuin aanwezig
Ja
Heeft een garage
Ja
Heeft rolluiken
Ja
Heeft een dakraam
Ja
Heeft zonwering
Ja
Heeft zonnepanelen
Ja

Kadastrale gegevens

Kadastrale aanduiding
Venlo H 6426
Perceeloppervlakte
243 m²
Omvang
Geheel perceel

Benieuwd wat jouw woning waard is?

Gratis waardebepaling